竞争性磋商公告
一、磋商内容: 门诊八楼党建文化墙打造施工项目
二、项目编号:202023
三、采购方式:竞争性磋商
四、项目概况:以医院三甲创建为抓手,着力提升医院环境品质,更好的将医院文化融入院区整体环境。根据医院整体规划,现需在门急诊楼八楼办公区打造党建文化墙,将医院文化及党建文化分类展示,实现以文化宣传及党建宣传为目的的医院精神文化空间。
五、施工要求:
(一)要求概述
项目前期设计已完成。施工过程中,在保证设计理念、整体效果和工程质量的前提下,可对现有施工图和设计效果图进行二次深化设计。深化方案设计原则不超过5个工作日,深化方案确定后,施工期原则上不超过15个工作日。夜间仅允许静音施工且需提前报备医院相关部门,原则上施工时间不得超过22:30。
(二)施工内容
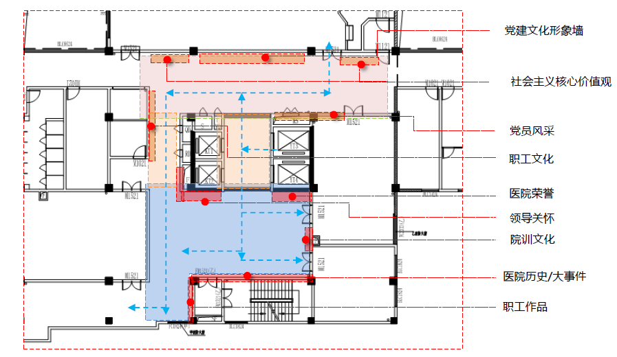
1.施工位置位于医院门急诊楼八楼主电梯厅旁两侧空域,具体如下图所示:

2.主要展陈内容分为党建文化和医院历程两个部分,具体如下图所示:



3.施工所用物料数量、规格、材质需满足或超过现有施工图所要求的水平(若有深化方案,以深化设计后的要求为准)。
4.供应商须在报名截止之前到现场勘查。
六、项目预算金额:16万元(壹拾陆万元整),超过最高限价作为废标处理。
七、投标人资质要求:
投标人应首先符合《政府采购法》第二十二条规定的基本条件,同时符合根据该项目特点设置的特定资格条件。
1.具有独立承担民事责任的能力;
2.具有良好的商业信誉和健全的财务会计制度;
3.具有履行合同所必须的设备和专业技术能力;
4.有依法缴纳税收和社会保障资金的良好记录;
5.参加政府采购活动近三年内,在经营活动中没有重大违法记录。
6.具有广告、标识标牌类设计、制作从业资格。
八、项目材料要求:材料清单详见施工图(附件1.施工图CAD版)。
九、评标原则:根据投标公司的报价、服务、实力等因素综合评定。评分细则如下:
序号 |
项目 |
分值 |
细则 |
标准 |
1 |
资质 审查 |
10分 |
法人 |
资料齐全(2分),否则(0分)。 |
★证书 |
具有广告、标识标牌类设计、制作从业资格(3分),否则不得分。 |
★征信 |
有征信证明材料(3分),无材料(0分);有不良记录作为废标处理。 |
业绩 |
有文化墙设计制作相关项目3个以上(2分),相关项目1个以上(1分),无经验(0分)。 |
2 |
项目 报价 |
40分 |
报价 |
有效的投标报价中的最低价为评标基准价,按照下列公式计算每个投标人的投标价格得分。投标价格得分=(评标基准价/投标价格)×价格权重×100。 |
3 |
技术 水平 |
30分 |
施工 |
施工方案合理,安装承诺好,验收方案合理,相对比较得0-5分。 |
实力 |
投标人拥有自己的生产、加工、制作场所(5分);项目主要负责人、管理人员、监督人员等必须为投标人本公司人员(5分);条件不符或外包制作(0分)。(注:场所需提供有效土地或房产使用证明文件并加盖公章,人员需提供社保或其他有效劳动关系证明材料) |
深化 |
有深化设计方案(效果图或其他方案材料)且问题优化合理,深化设计效果符合人文审美,相对比较得0-15分。 |
5 |
售后 服务 |
20分 |
售后 |
售后承诺好,响应快速有效,相对比较得0-10分。 |
质保 |
材料类质保≥3年,灯具类质保≥2年(10分);材料类质保≥1年,灯具类质保≥1年(5分);无质保或质保不足1年(0分)。 |
6 |
合计 |
100分 |
—— |
—— |
十、报名方式:
1.凡有意参加谈判的供应商,请于 2020 年 8 月27 日起至截止时间之前,在重庆市职业病防治院网上下载本项目竞争性谈判文件以及所有项目资料,无论供应商下载或领取与否,均视为已知晓所有谈判实质性要求内容。
2.报名时提交投标人所代表公司的资质证明文件。包括提供有效的公司三证(即营业执照、组织机构代码证、税务登记证)复印件,已三证合一的公司只需提供营业执照复印件。投标人提供有效的法定代表人身份证复印件、法定代表人授权委托书、项目经办人身份证复印件。
3.谈判地点:重庆市职业病防治院(南岸区南坪南城大道301号)
4.报名及提交响应文件截止时间:2020年 8 月27 日北京时间17:30
5.磋商开始时间:(以电话或短信通知为准)
6.投标书上必须注明投标人或其授权的代表签字,密封并加盖单位公章。
7.标书内容包括:商务、方案、价格三方面,以正副本形式装入一个密封袋报送。
八.投标截止时间之后,投标单位不得再报送标书、不得修改或撤回投标文件。
联系方式:023-61929578 夏老师
023-61929183 刘老师